CHARMING GARDEN APARTMENT – MORE LIKE A SEMI

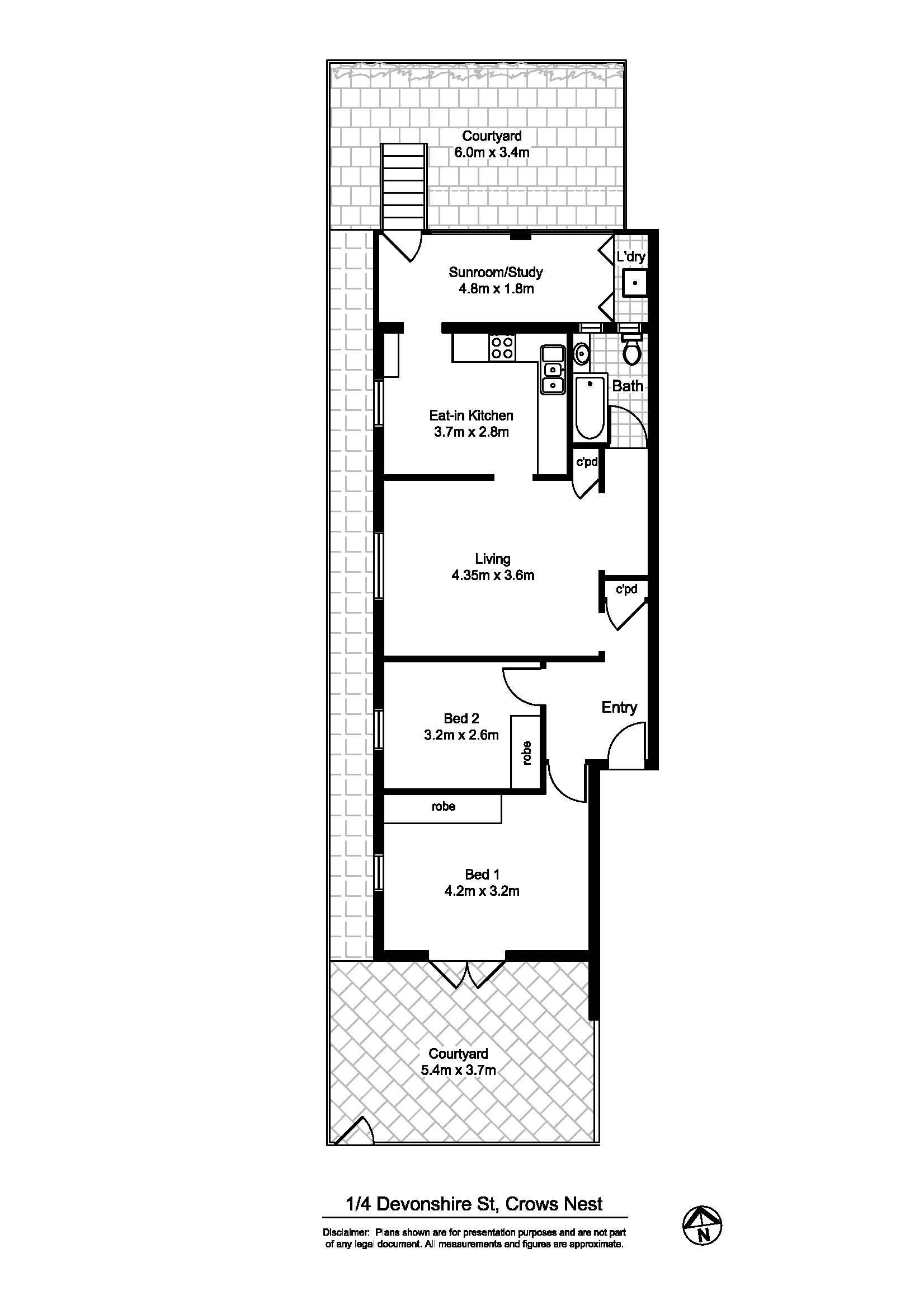
Set in a delightful small block of four, this ground floor garden apartment feels more like a semi with its distinctive floorplan, offering generous accommodation throughout, character features, front and rear courtyards and direct street access and a perfect north to rear aspect


2 bedrooms, master suite opens onto front courtyard via French doors
Large living room with ornate ceilings
Generous eat in kitchen flows to rear sunroom
Sunroom ideal as home office or second living space
Two courtyards, rear courtyard enjoys sunny northern aspect
Character themed bathroom, separate internal laundry facility
Polished timber floors throughout, High ornate ceilings
Brilliantly located in a lovely quiet setting with everything Crows Nest has to offer on your doorstep
Walk to parkland, cafes, restaurants and public transport
2 1
Address 1, 4 Devonshire Street, Crows Nest
Price SOLD
Property Type Residential
Property ID 1346
Category Apartment

Agent Details

Brad Cole photo

Brad Cole

0414 368 330
View Profile