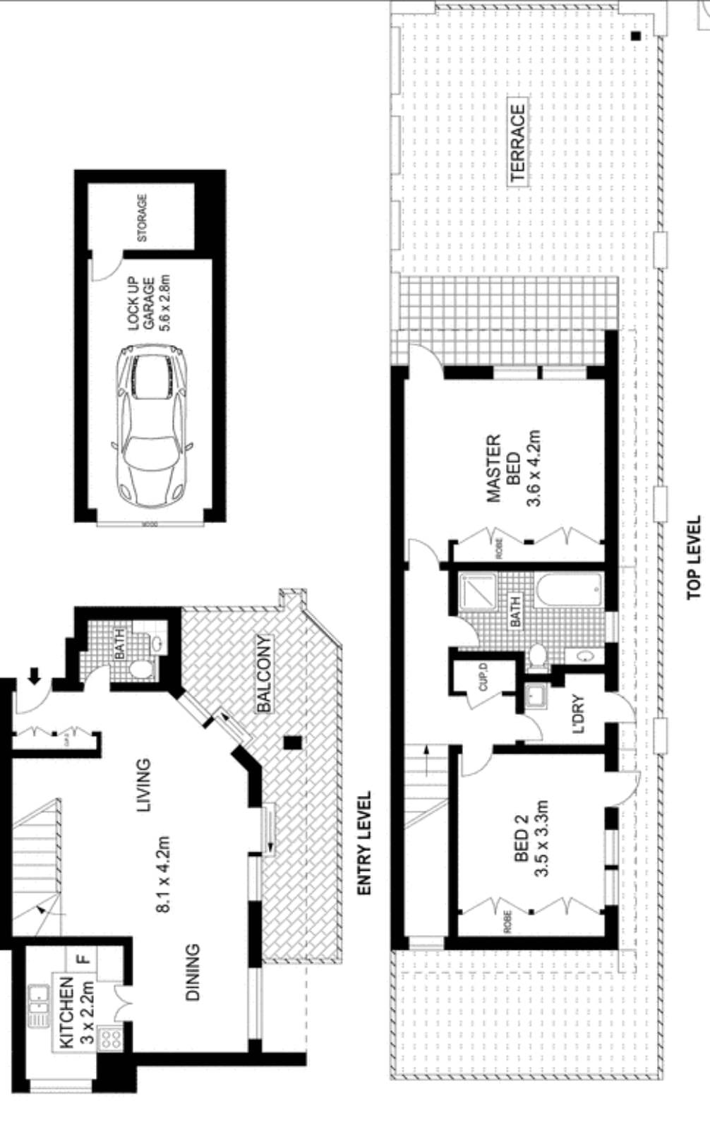
Penthouse Style Dual Level Apartment

A splendid, north-facing apartment spanning two levels, offering generous proportions, fantastic options for entertainment and lifestyle, and a vast, sun-drenched rooftop terrace.

Quiet living and dining with adjoining balcony set at the rear of the building.
2 queen sized bedrooms with built in robes
Enormous north facing entertainers terrace
Modern stone kitchen with gas cooking
Guest wc on entertaining level, excellent storage throughout
Large modern bathroom with separate bath and shower
Air conditioning, Rooftop clothes line
Private district outlook, light and bright
Separate internal laundry
Lock up garage plus storeroom
Pet friendly

Available from the 10th August

Features

Balcony Deck
2 1 1
Available Leased
Address 8, 101 Falcon Street, Crows Nest
Price Deposit Taken
Property Type Rental
Property ID 1403
Category Apartment

Agent Details