Beautifully Renovated, Perfect Aspect

Enjoying a perfect sunny northerly aspect, this mid floor apartment has been renovated throughout, providing lovely contemporary interiors and finishes throughout in this superbly convenient location with Crows Nest cafes, restaurants & Metro on your doorstep and a short stroll to St Leonards rail.

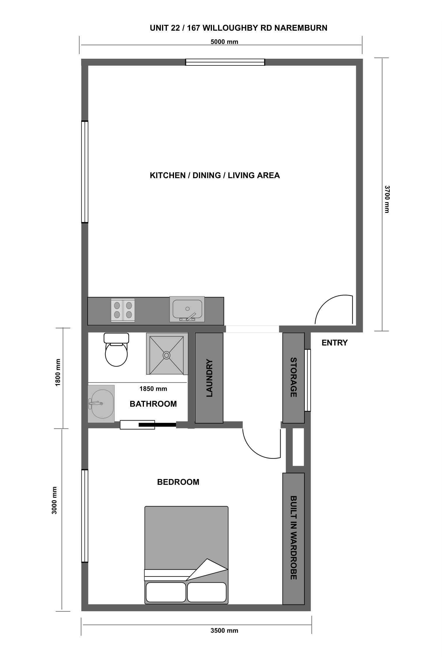
Sunny open plan living with district outlook
New stone kitchen with quality appliances, integrated fridge
Large bedroom with built in robes
Lovely timber floors throughout, air conditioning
Internal laundry facilities with washer and dryer included
Updated bathroom, LED lighting throughout, fabulous storage
Communal pool
Security basement parking
1 1 1
Address 22, 167 Willoughby Road, Naremburn
Price SOLD
Property Type Residential
Property ID 1526
Category Unit

Agent Details

Brad Cole photo

Brad Cole

0414 368 330
View Profile
Ryan Wilson photo

Ryan Wilson

0404 435 462
View Profile