Sold

FABULOUS HARBOURSIDE LIVING

A rare opportunity to secure a highly sought after harbourside residence spectacular views of the Harbour Bridge and Opera House.

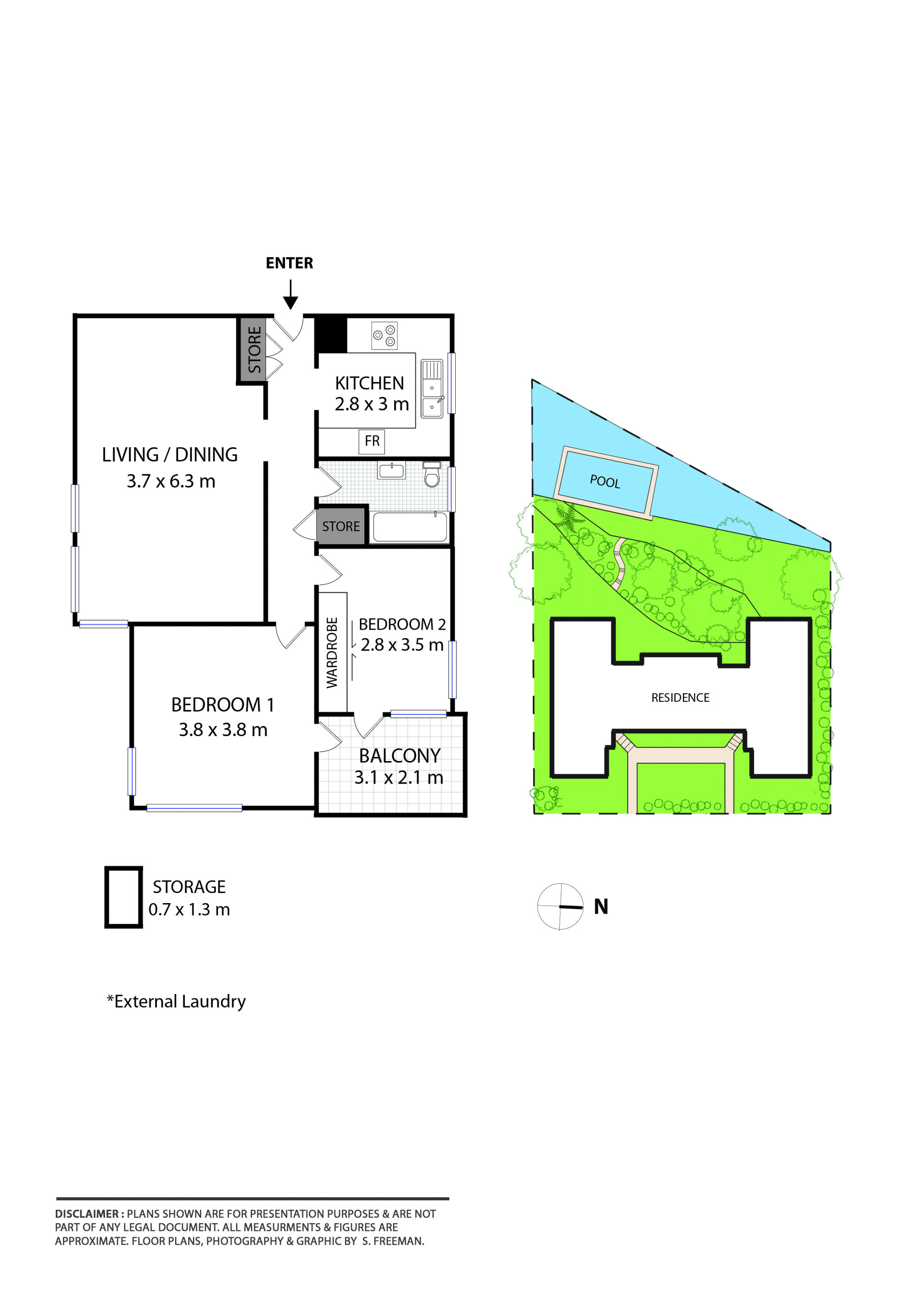
Positioned at the peninsula tip, the property enjoys a front wing position in the tightly-held "Westbridge" harbourside waterfront building. The property is set in private gardens with a waters-edge pool and a barbeque area for entertaining on the shores of Berrys Bay.

Spacious open plan living and dining with harbour views
2 double bedrooms, built –in, air cond., harbour views, balcony
Immaculate kitchen appointed with Caesar stone bench kitchen and European appliances
Modern bathroom
High ceilings, window shelves and an abundance of natural light
Large private balcony on the harbour ...perfect for New Years Eve!
Just seconds away from Blues Point Reserve, parks, cosmopolitan cafes and McMahons Point village
Additional secure storage on lower ground floor
Parking available at "Westbridge" on a waitlist basis
Security building with intercom
2 1 2
Address 8, 40 Blues Point Road, Mcmahons Point
Price SOLD for $1,200,000
Property Type Residential
Property ID 586
Category Unit

Agent Details

Brad Cole photo

Brad Cole

0414 368 330
View Profile