Sold

OVERSIZED SEMI, STYLE & CHARM

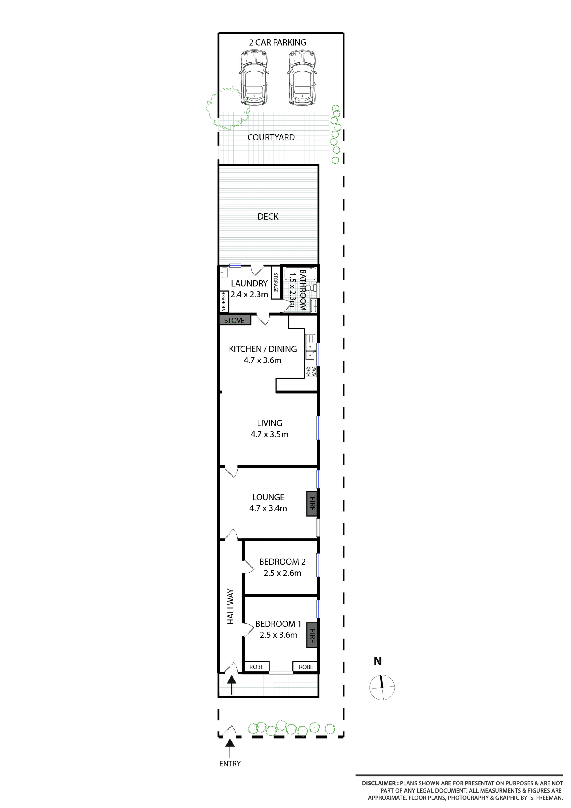
Beautifully presented throughout, this charming semi offers generous accommodation with vast indoor and outdoor living areas, combined with character features and an open flexible floorplan.

2 bedrooms, main with ornate fireplace & built in robes
Separate formal lounge, ornate fireplace, picture rails
Casual living room with open plan design to dining and kitchen
Solid Oregan timber kitchen with original combustion stove
Fabulous large undercover outdoor entertaining area
Large rear yard with sunny north aspect
Rear lane access to double parking
Conveniently located to Crows Nest cafes and city transport
2 1 2
Address 110 Falcon Street, Crows Nest
Price SOLD for $1,750,000
Property Type Residential
Property ID 649
Category House

Agent Details

Brad Cole photo

Brad Cole

0414 368 330
View Profile