Sold

Grand Federation Fabulous Lifestyle

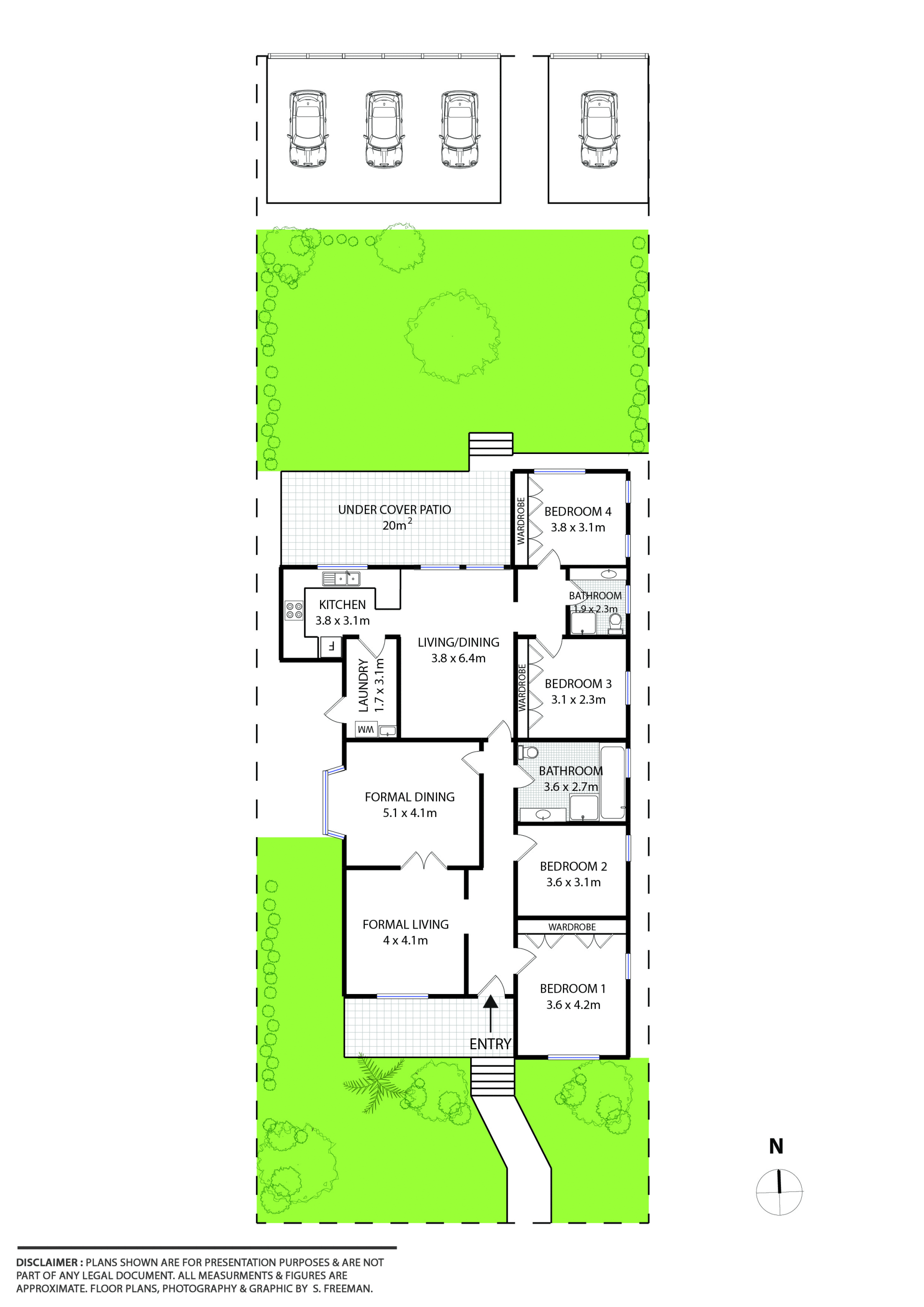
Meticulously renovated and finished throughout, this beautiful family home exudes an elegance and style blending period charm with superb entertaining areas, on a substantial 715 square metre parcel of land with a perfect north to rear aspect.

4 double bedrooms
2 luxury bathrooms, underfloor heating heated towel rails
Separate formal lounge and dining rooms
Open plan kitchen with adjacent casual living and dining
Large under cover outdoor entertaining area
Large internal laundry
Sunny vast private north facing rear garden
Grand character facade with large Verandah
4 car garage accessed via rear lane
5kw solar panel system, 3,000L water tank
Lovely quiet and private gardens
Supremely convenient location with Naremburn village on your doorstep
4 2 4
Address 9 Merrenburn Avenue, Naremburn
Price SOLD for $3,200,000
Property Type Residential
Property ID 659
Category House

Agent Details

Brad Cole photo

Brad Cole

0414 368 330
View Profile