ARCHITECTURAL, UNIQUE, LOCATION

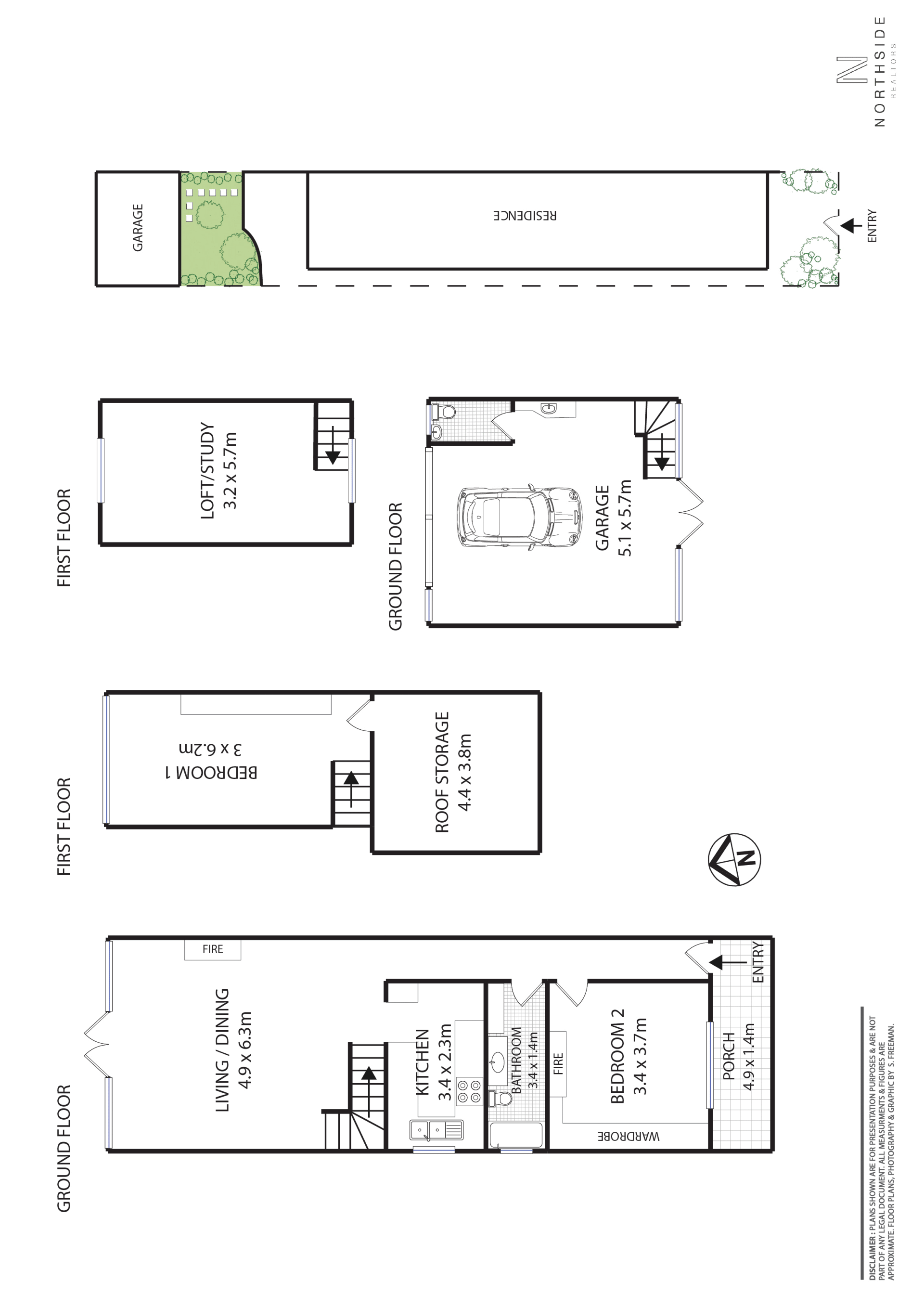
In a prime location, this semi-detached residence has been architecturally designed to enhance the abundance of natural light, incorporates spacious loft mezzanines, multiple living zones and offers fantastic outdoor entertaining. The private level rear yard faces North and the garage and studio envelops this large 261 SQM of land. 200m walk to fabulous Crows Nest village.

 

2 bedrooms. Front bedroom, built-in and period open fireplace. The

   other bedroom comprises of a large mezzanine, built-ins

Spacious living opens onto a large courtyard and garden

Private front porch; vaulted ceilings in the main living, stunning

   hardwood floors

Modern granite bench and gas top kitchen; classic style bathroom

Features high decorative ceiling; large bi-fold doors and an

   extensive use of glass, timber and architectural windows

Large LUG with workshop, storage. Timber floor loft studio with

   floor to ceiling windows and full ceiling height; laundry

2 1 1 261 m2
Address 64 Burlington St, Crows Nest
Price SOLD for $1,950,000
Property Type Residential
Property ID 829
Category House
Land Area 261 m2

Agent Details

Brad Cole photo

Brad Cole

0414 368 330
View Profile